Low cost operator ‘The Gym’ will be opening at White City if plans submitted to Trafford Council go ahead.
Membership of ‘The Gym’ is at low cost, with no minimum contract period. As such members can join for just a single month, or have a break within their membership at nominal cost. ‘The Gym’ opens on a 24 hour basis to ensure flexibility of use by its members.
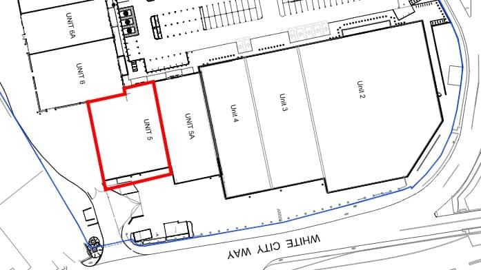
100151/FUL/20 | Change of use from A1 (retail) to D2 (gymnasium) together with alterations to elevations | Unit 5 White City Retail Park Chester Road Stretford Manchester M16 0RP

Leave a Reply